1/5



佐賀県 唐津市
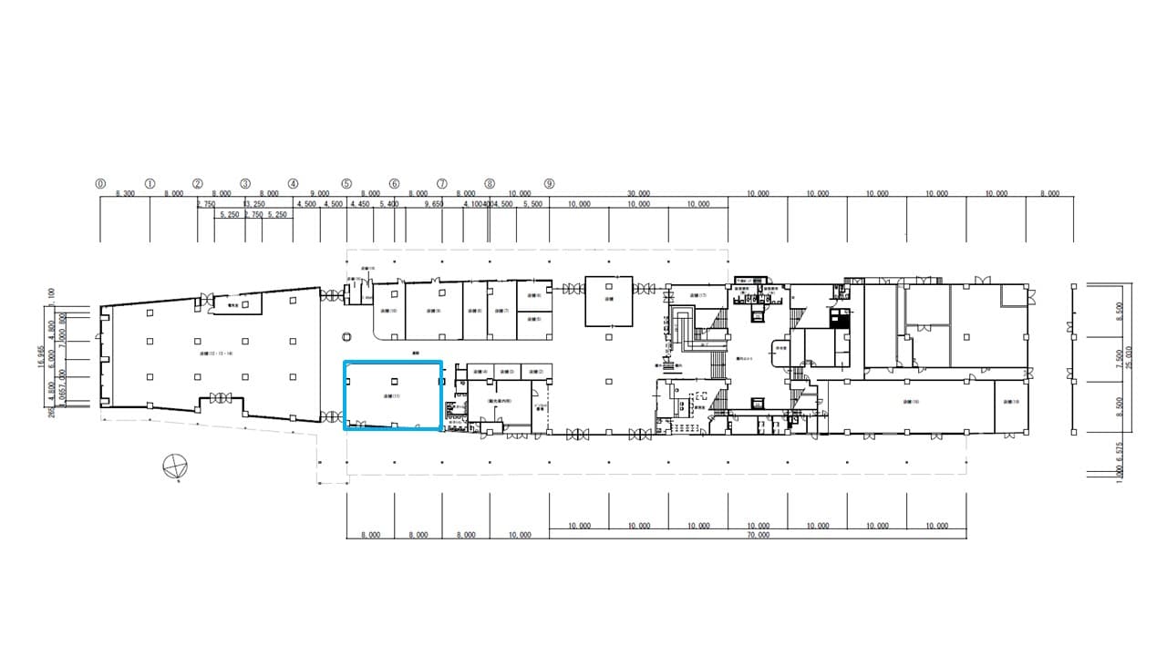
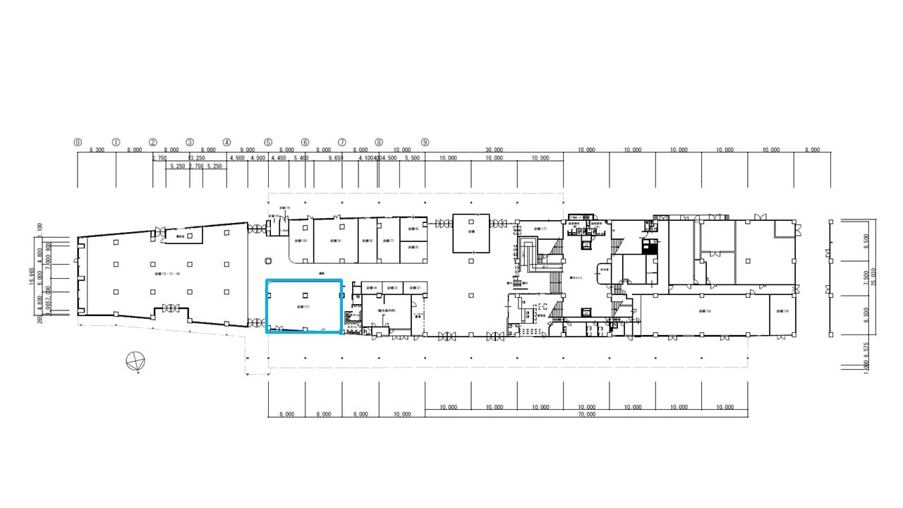
173.07㎡ (52.35坪)
図面・フロアマップ

唐津城や唐津焼、唐津くんちで有名な唐津氏は人口約12万人の佐賀県北部の中心都市。その陸の玄関にあたる唐津駅は1日に約4,000人の乗降があり、JR筑肥線と福岡市営地下鉄の直通運転で福岡空港まで1本で結ばれていることもあり、福岡市との往来も多いエリアです。 「えきマチ1丁目唐津」では、観光案内所や菓子・海産物などの土産店のほか、ドラッグストアなど日常的なニーズに応えるお店が営業しております。
物販
食品・生鮮・惣菜・グロサリー
食物販(個包装、贈答菓子等)
食物販(切り売り、量り売り等)
軽飲食(カフェ等)
重飲食(レストラン等)
理美容・サロン
病院・クリニック・薬局
スポーツジム・フィットネス
学習塾・子供向け教室
語学・資格・カルチャー教室
アミューズメント
サービス提供
展示・ギャラリー
政府・自治体・公共団体