1/4



長崎県 佐世保市
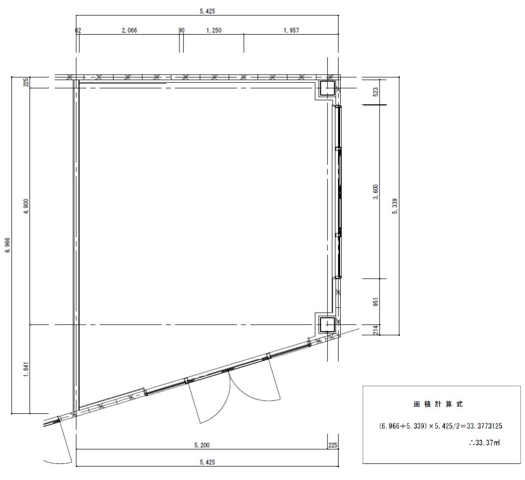
33.37㎡ (10.09坪)
図面・フロアマップ


路面店に近いオープン型の区画 飲食2店舗(とんかつ店、ステーキ及びハンバーグ店)が集積。 スーパー及びドラッグストアの目の前に立地。
物販
食品・生鮮・惣菜・グロサリー
食物販(個包装、贈答菓子等)
食物販(切り売り、量り売り等)
軽飲食(カフェ等)
重飲食(レストラン等)
理美容・サロン
病院・クリニック・薬局
スポーツジム・フィットネス
学習塾・子供向け教室
語学・資格・カルチャー教室
アミューズメント
サービス提供
展示・ギャラリー
政府・自治体・公共団体
個別空調
個別電源
給排水
厨房・調理設備
ガス
給湯
防音
専用入口