鹿児島県 出水市
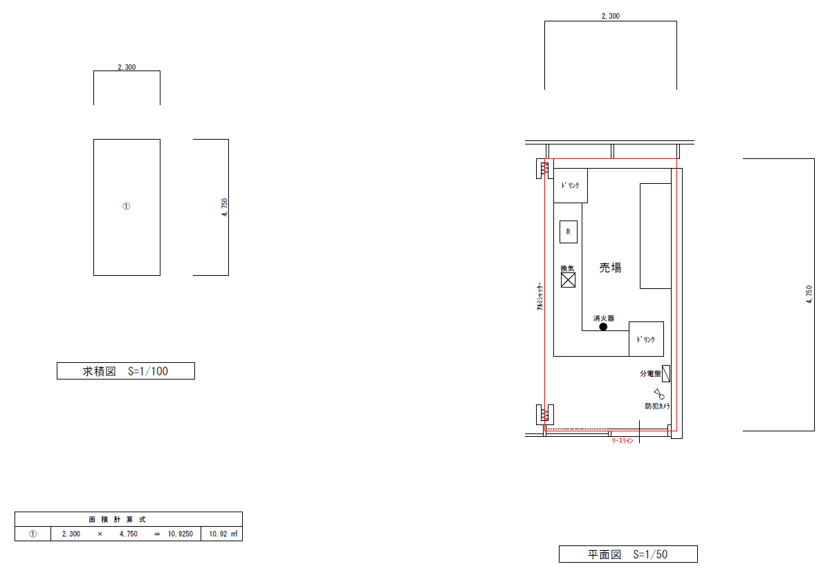
10.92㎡ (3.3坪)
図面・フロアマップ


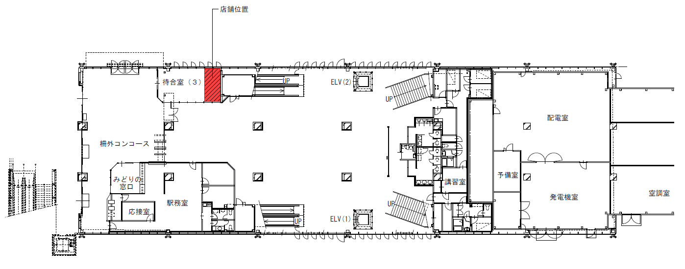
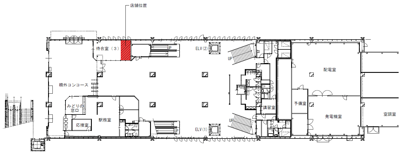
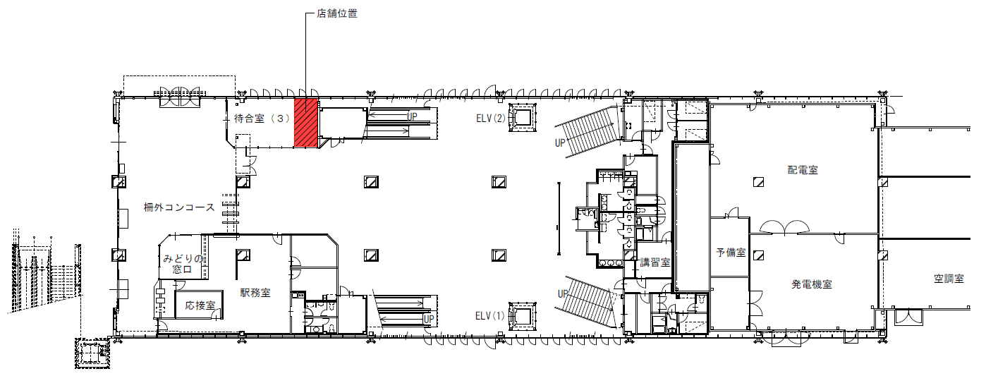
JR九州新幹線【出水駅】構内にあります区画となります。 駅改札に隣接及び待合室の中にある区画になりますので、 多くのお客さまが利用しやすい場所になります。 ※一部図面は前契約者さまの展開図面になります
物販
食品・生鮮・惣菜・グロサリー
食物販(個包装、贈答菓子等)
食物販(切り売り、量り売り等)
軽飲食(カフェ等)
重飲食(レストラン等)
理美容・サロン
病院・クリニック・薬局
スポーツジム・フィットネス
学習塾・子供向け教室
語学・資格・カルチャー教室
アミューズメント
サービス提供
展示・ギャラリー
政府・自治体・公共団体