1/2


長崎県 佐世保市
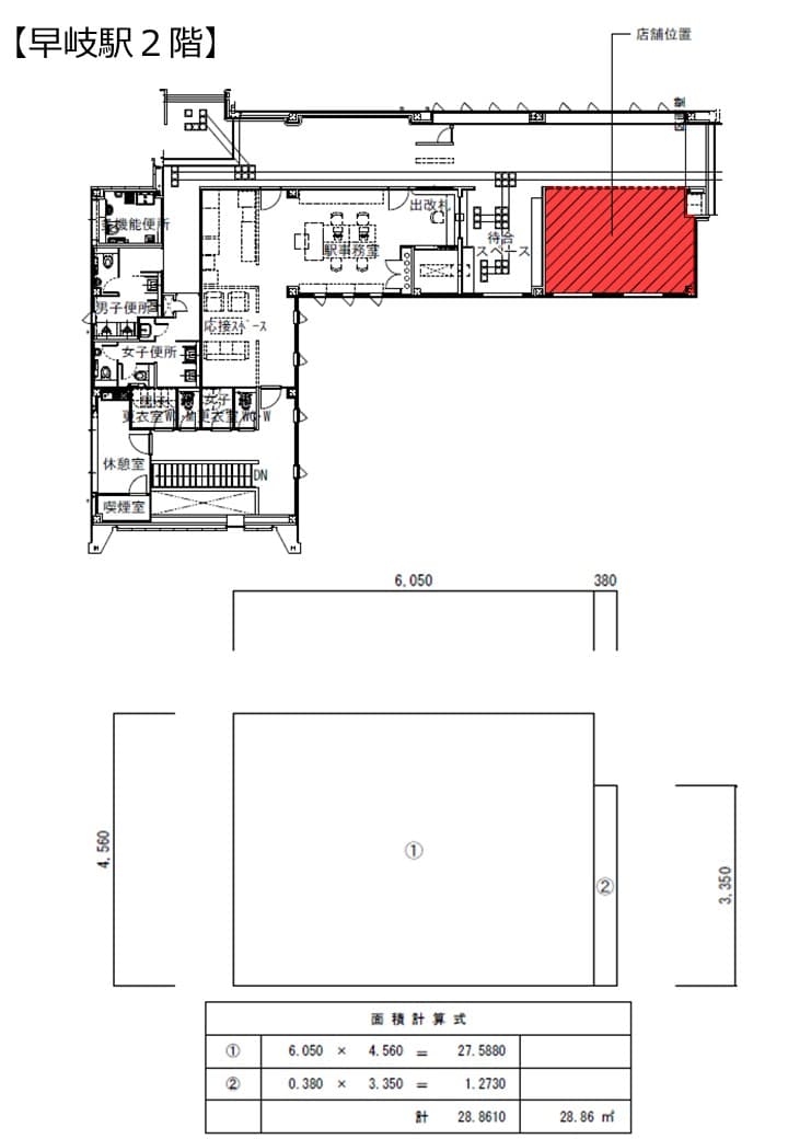
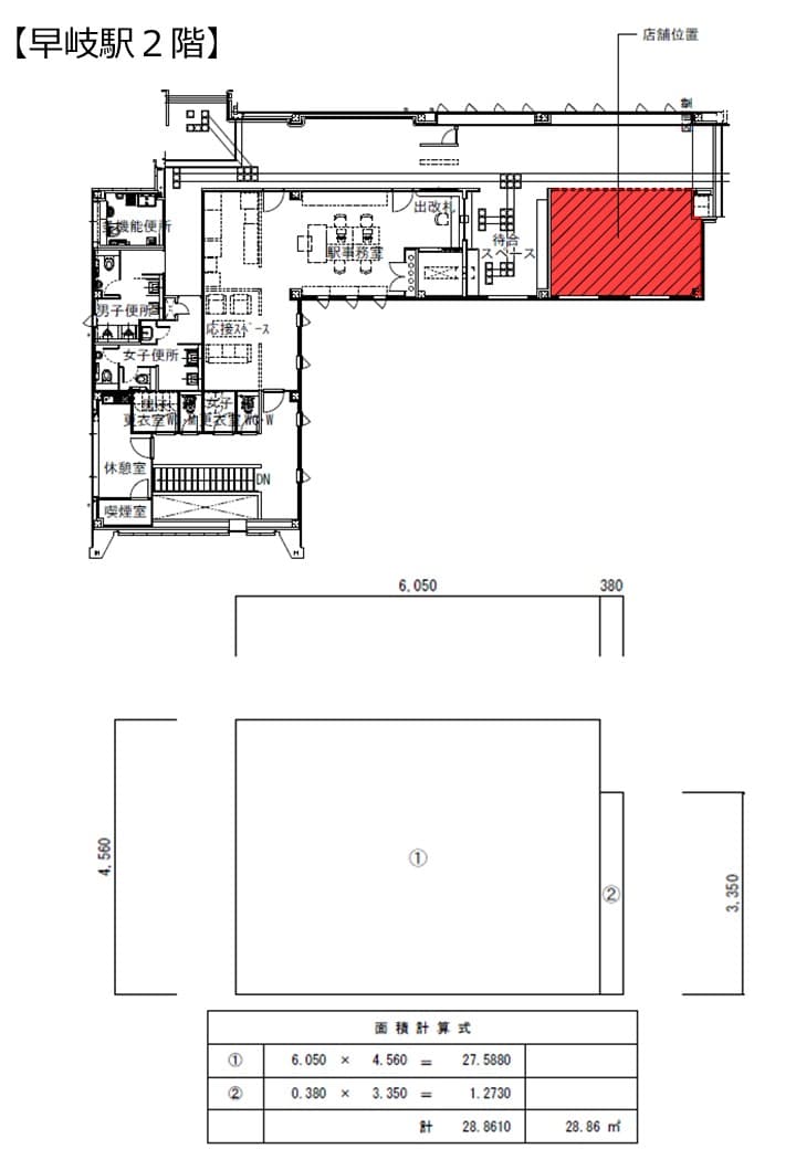
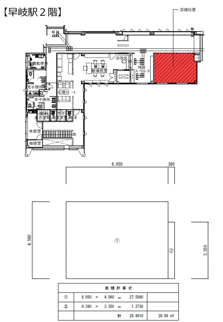
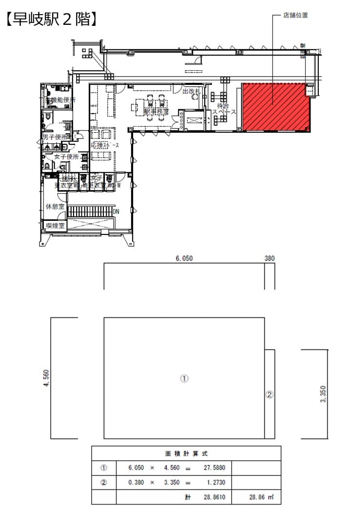
28.86㎡ (8.73坪)
図面・フロアマップ

JR九州佐世保線及び大村線【早岐駅】構内での区画になります。 改札近くの区画でございますので、 非常にお客さまが利用しやすい区画になります。 ※写真は前契約者さまによる営業当時の写真になります
物販
食品・生鮮・惣菜・グロサリー
食物販(個包装、贈答菓子等)
食物販(切り売り、量り売り等)
軽飲食(カフェ等)
重飲食(レストラン等)
理美容・サロン
病院・クリニック・薬局
スポーツジム・フィットネス
学習塾・子供向け教室
語学・資格・カルチャー教室
アミューズメント
サービス提供
展示・ギャラリー
政府・自治体・公共団体

長崎県佐世保市
早岐駅施設JR九州佐世保線及び大村線【早岐駅】構内での区画になります。 改札近くの区画でございますので、 非常にお客さまが利用しやすい区画になります。 ※写真は前契約者さまによる営業当時の写真になります