1/5



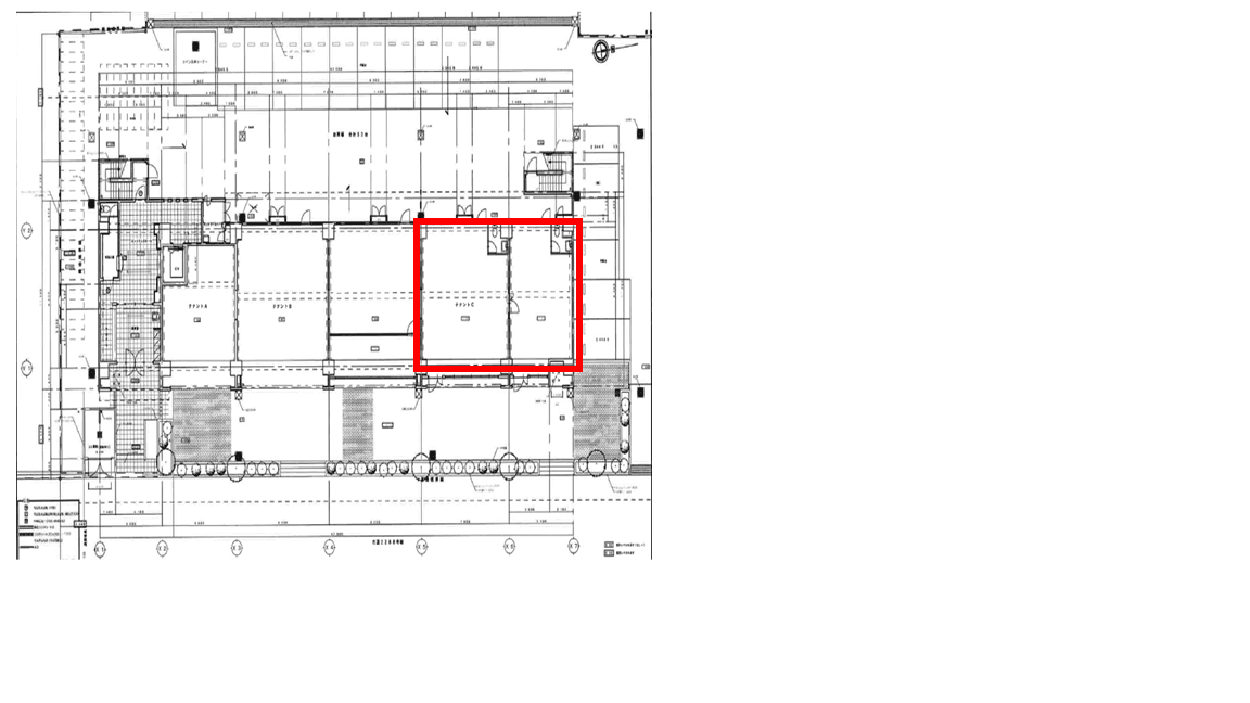
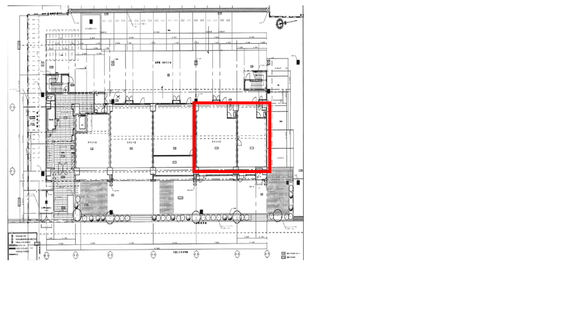
鹿児島県 鹿児島市
130.29㎡ (39.41坪)
図面・フロアマップ

当物件は新幹線の発着点で九州南部の交通の要所となっている鹿児島中央駅から700m、徒歩約10分の場所に位置しております。上層階には賃貸マンションがあり、同敷地内に月極駐車場スペースもございます。事務所としてご出店可能な物件です。
物販
食品・生鮮・惣菜・グロサリー
食物販(個包装、贈答菓子等)
食物販(切り売り、量り売り等)
軽飲食(カフェ等)
重飲食(レストラン等)
理美容・サロン
病院・クリニック・薬局
スポーツジム・フィットネス
学習塾・子供向け教室
語学・資格・カルチャー教室
アミューズメント
サービス提供
展示・ギャラリー
政府・自治体・公共団体
その他募集中の業態