1/7



福岡県 北九州市
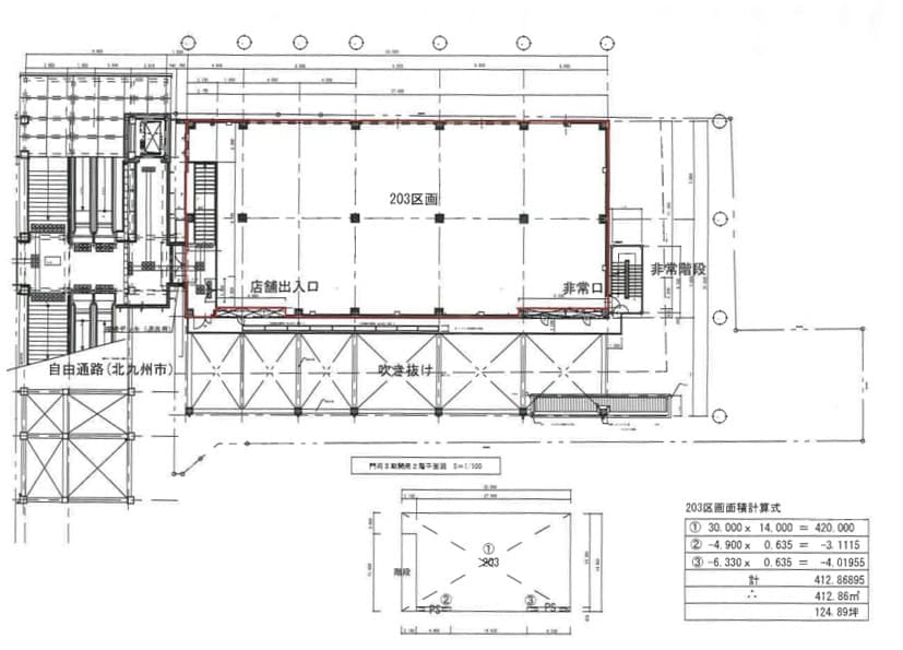
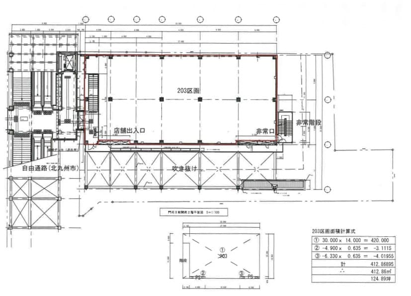
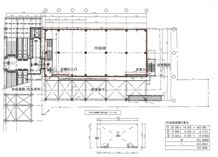
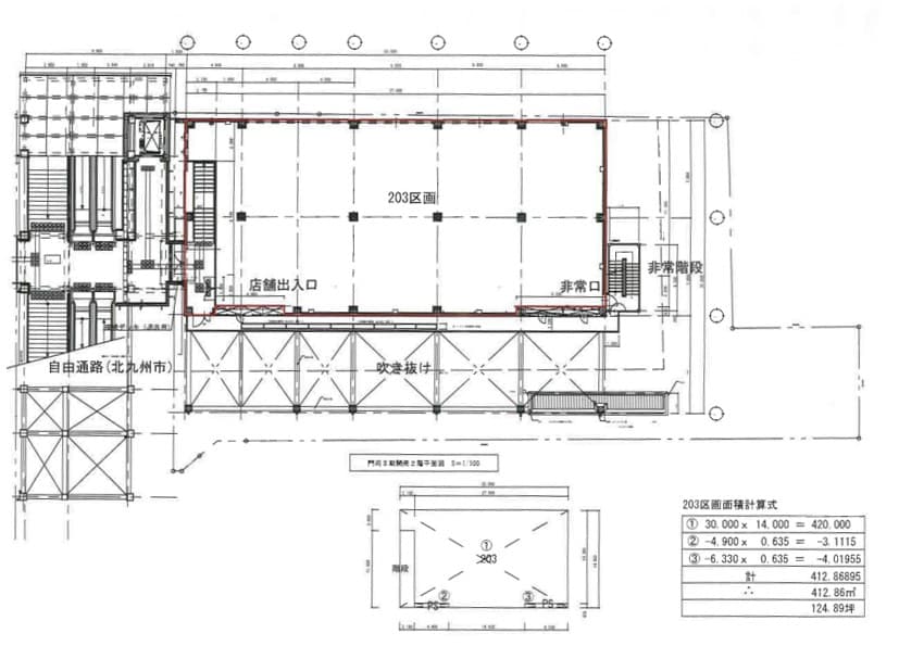
412.86㎡ (124.89坪)
図面・フロアマップ

コンビニやファーストフード、持ち帰り寿司、クリニックなど生活利便性の高い店舗構成で日々の駅利用者の皆さまにご利用いただける「えきマチ1丁目門司」。 山と海に面した良好な住宅地が広がる門司区の中心に立地し、通勤・通学をはじめ1日約1万1千人が乗降する門司駅は北九州市の北の拠点です。 本区画は、前区画としてはオフィスとして活用されておりましたが、各施設状態が非常に良いこともあり、現状渡し(内装譲渡)でのご相談が可能な物件となっております。
物販
食品・生鮮・惣菜・グロサリー
食物販(個包装、贈答菓子等)
食物販(切り売り、量り売り等)
軽飲食(カフェ等)
重飲食(レストラン等)
理美容・サロン
病院・クリニック・薬局
スポーツジム・フィットネス
学習塾・子供向け教室
語学・資格・カルチャー教室
アミューズメント
サービス提供
展示・ギャラリー
政府・自治体・公共団体
個別空調
個別電源
給排水
厨房・調理設備
ガス
給湯
防音
専用入口